Skip to content

Bathroom · Kennewick, WA

Master Bath Upgrade

A builder-grade primary bath was reconfigured for safer aging-in-place use, better heating comfort, and elevated design detail.

Before

The large bath had unused tub space, underwhelming shower performance, awkward ceiling treatment, and no dedicated HVAC supply.

The Plan

Replace the tub with a larger walk-in shower, simplify ceiling geometry, improve storage and safety, and solve heating/cooling deficiencies.

After

The remodeled bath delivers comfort, accessibility, and refined finishes with a spacious shower-centered layout.

Project Details

  • Tub-to-shower conversion with safer access
  • Heated porcelain flooring and comfort upgrades
  • Expanded dual-use vanity and storage improvements
  • Ceiling redesign with integrated accent lighting

The Space Before

The heaterA beautiful home in south Kennewicks featured a spacious, double-vanity master bath, but was appointed with standard builder-grade features. The fiberglass shower was underwhelming and the tub was never used. There was plenty of vanity space, but the shower was the biggest issue. They wanted a nice walk-in shower. and an over-all update. The intricately faceted bathroom ceiling detail bothered her sense of esthetics and balance. The "boob" light in the middle just added to the sense of being a bit "off". When the home was built, a heating & cooling duct was never run to the master bath, so it was cold in the winter. Solving that problem was an imperative. Click on an any image to enlarge

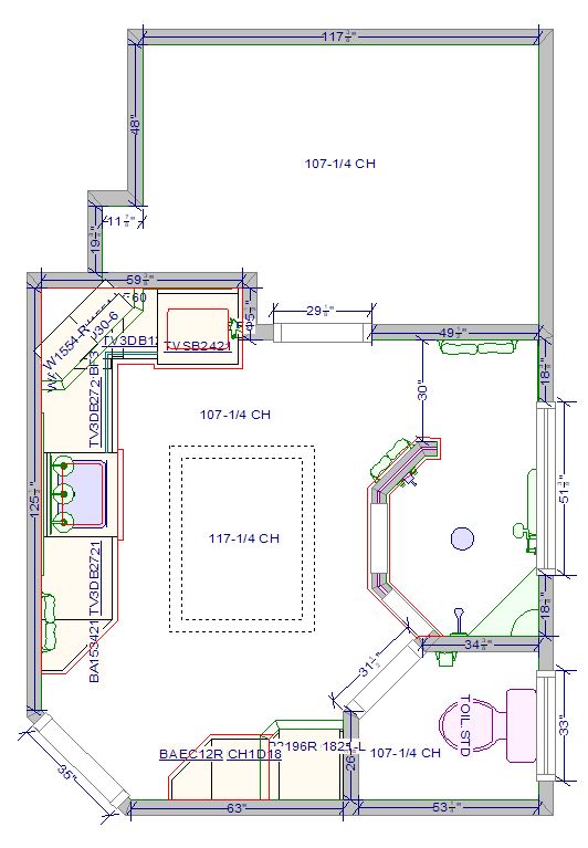
Design Plans

It made sense to leave the toilet compartment alone. The tub space was large enough to get us a nice sized walk-in shower. With the space vacated by the old shower, we had room to expand the vanity into one large enough for two. Designing the shower with 1/2 walls meant shower privacy without sacrificing the visual size of the space. It also allowed us th capitalize on the existing high window. The quixoticly framed ceiling was simplied and re-centered in the space and given concealed, indirect lighting and an interesting ceiling treatment. Before After

The Finished Space